An Office Redo With “Social Distancing” in Mind

Ahead of our people physically coming back to work in the office we wanted to reconfigure the layout to meet social distancing guidelines and create a safe, comfortable environment for them and for our clients.

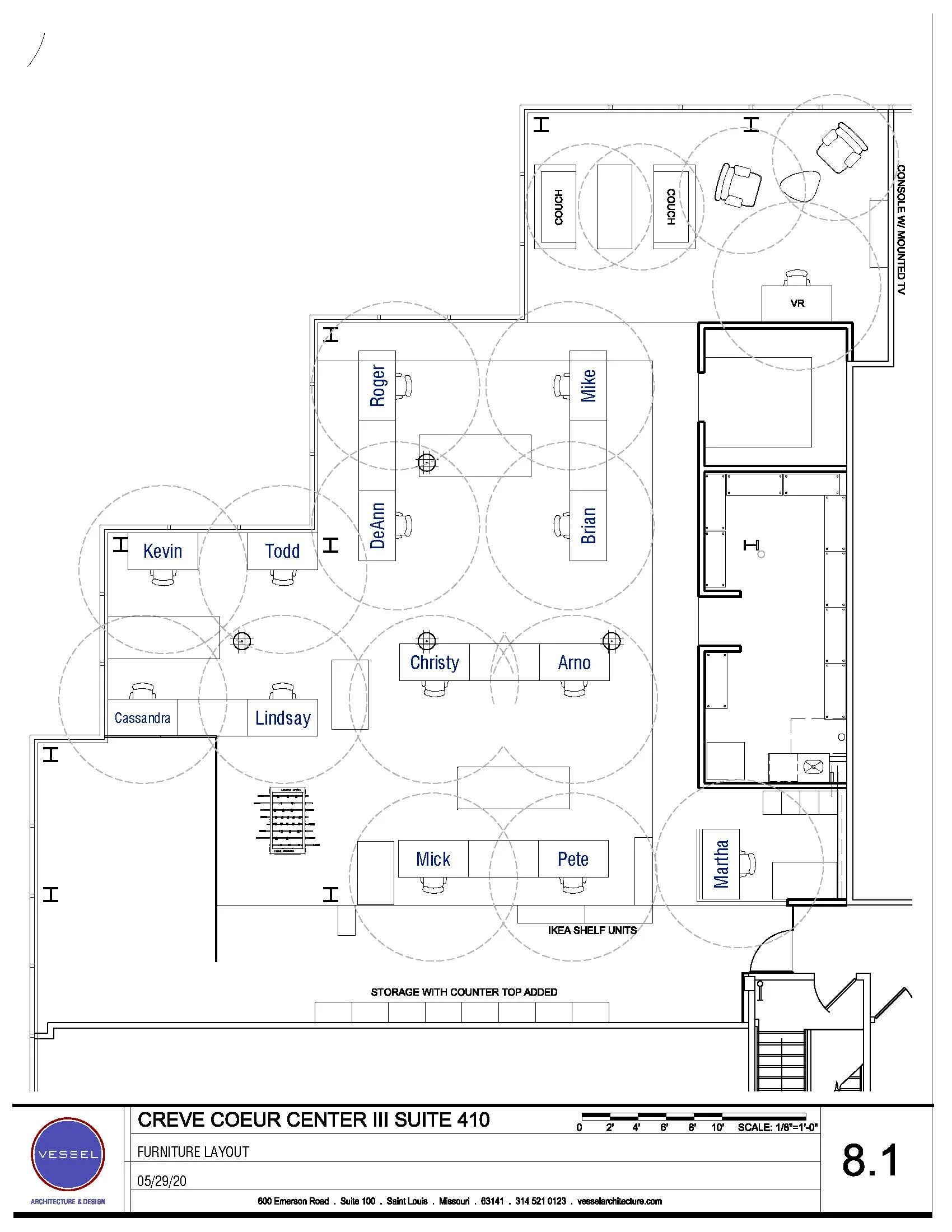
With our ever helpful software (Revit) and talented staff, we created a viable layout and included those six foot “bubbles” that the CDC recommends. The result was a spacious, open look with plenty of space to spread out and work. Check out the before and after. Need help with your own office layout? Not sure where to start? Give us a call and we’ll help.

Author Name
Previous
Previous

A Father's Day Memory

Next
Next

5 HVAC Strategies for Covid-19