Architecture Week: From First Idea to Final Building

Architecture doesn’t begin with walls or materials—it begins with ideas. During AIA’s Architecture Week, we’re taking a step back to highlight the full journey of a project, from the earliest concepts to the finished building.

While the final result is what most people see, every project is shaped by a layered, collaborative process that ensures the design not only looks good, but works well for the people who use it.

Here’s a look at how that process unfolds.

Schematic Design

Every project begins with exploration. Before plans or elevations are drawn, we study how spaces should relate to one another.

This often takes the form of schematic diagrams—quick, flexible studies that map adjacencies, circulation, and flow. What needs to be next to what? Where are the key connections? How will people move through the space?

At this stage, the goal isn’t perfection. It’s clarity. These early decisions set the foundation for everything that follows.

Design Development

As the design progresses into Design Development, ideas begin to take shape. Walls are defined, rooms become more precise, and circulation is refined with intention.

This is where we begin testing how the building will actually work. We coordinate closely with consultants and partners, ensuring that systems, structure, and user experience align with the design vision.

If the first phase asks, “What could this be?”
This phase begins answering, “How will it work?”

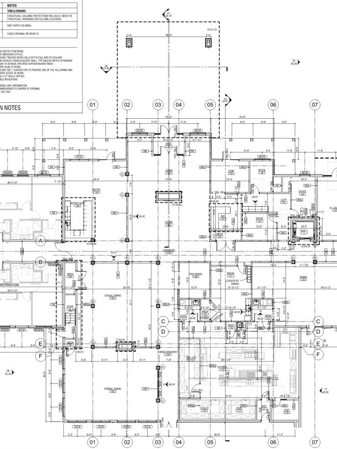
Construction Documents

With a clear direction in place, the project moves into Construction Documents.

This is one of the most detailed and critical phases of the process. Drawings become fully dimensioned and coordinated, outlining materials, assemblies, and code requirements. Every detail is developed so the project can be accurately priced, permitted, and built.

It may not be the most visible part of architecture, but it’s essential. Without this level of precision, great ideas can’t become reality.

Construction Administration

During Construction Administration, the focus shifts from the studio to the field.

This phase includes site visits, coordination with contractors, and ongoing problem-solving to ensure the project is being built as intended. Questions are answered in real time, adjustments are made when necessary, and quality is carefully maintained.

We view this as a true partnership—working alongside the contractor to serve the client and protect the integrity of the design all the way through construction.

The Finished Building

At the end of the process, the building stands complete.

What people experience in the final space is the result of months—often years—of planning, iteration, coordination, and collaboration. Every decision, from the earliest diagram to the final detail, contributes to how the building looks, feels, and functions.

More Than a Process

Architecture is often judged by its final product, but it’s defined by the process behind it.

Architecture Week is a chance to recognize not just the buildings themselves, but the thinking, teamwork, and care that bring them to life. From the first sketch to the final walkthrough, every phase plays a role in creating spaces that support the people who use them.

At the end of the day, that’s what matters most—designing places where people can truly flourish.

Author Name
Next
Next

Senior Living 3.0: Demographic Destiny